iQ Makelaars Feedbackcompany
9.5 10
252 reviews
iQ Makelaars Funda
9.9 10
 
ZWOLLE, Van Ittersumstraat 82
 

Van Ittersumstraat 82 ZWOLLE

Vraagprijs € 350.000,-
k.k.
Vraagprijs € 350.000,-
k.k.
Van Ittersumstraat 82 ZWOLLE
  • TypeTussenwoning
  • Woonoppervlakte91 m²
  • Perceelgrootte90 m²
  • Slaapkamers2
  • Aangeboden sinds15-08-2025
  • Beschikbaarheid In overleg
Vraag bezichtiging aan

Omschrijving

Met zijn charmante, karakteristieke gevel is deze woning een plaatje én een kans om je eigen droomhuis te creëren. Achter die uitnodigende buitenkant schuilt een huis dat wacht op een frisse start. Binnen is alles nog volledig naar eigen smaak te moderniseren én te verduurzamen. Een unieke kans om jouw droomhuis helemaal zelf vorm te geven.

Deze voormalige studentenwoning staat te popelen om nieuw leven ingeblazen te krijgen. En als dat eenmaal is gebeurd.. woon je in één van de gezelligste straten van Zwolle, op slechts enkele minuten lopen van de stadsgracht en de bruisende binnenstad. ’s Ochtends wandel je naar je favoriete koffietentje op de Assendorperstraat en ’s avonds geniet je met vrienden van de laatste zonnestralen in je eigen tuin.

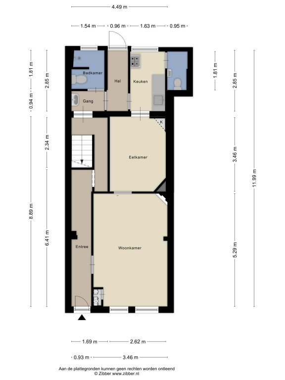
Zo ziet de indeling er nu uit:

Begane grond
Entree, hal, woonkamer, eetkamer, keuken, toilet, badkamer met tweede toilet en toegang tot de zonnige achtertuin op het westen met achterom en stenen schuurtje.

Eerste verdieping
Twee ruime slaapkamers, tweede keuken met kast met CV-ketel (Nefit, 2007). Vanuit de overloop is er toegang tot de vliering.

Kortom: Ben jij klaar om te klussen, creëren en het échte Assendorper stadsleven te omarmen? Pak deze kans en maak van Van Ittersumstraat 82 jouw droomhuis!

Meer

Neem contact op

Specificaties

Bouw

  • Soort Woningen
  • Type Tussenwoning
  • Bouwjaar 1895

Algemeen

  • Beschikbaarheid In overleg

Energie

  • Energielabel G
  • CV-ketel Combi
  • CV-ketel eigendom Ja
  • CV-ketel brandstof Gas
  • CV-ketel bouwjaar 2007
  • CV-ketel warmwater Ja
  • Aanwezige isolatie Glasisolatie

Indeling

  • Slaapkamers 2
  • Tuin Ja

Voorziening

  • Parkeerplaats Ja

Afmetingen

  • Woonoppervlakte 91 m²
  • Perceeloppervlakte 90 m²
  • Woninginhoud 329 m³
  • Tuin oppervlakte 28 m²
Meer

Afbeeldingen

 
 
 
 
 
 
 
 
 
 
 
 
 
 
 
 
 
 
 
 
 
 
 
 
 
 
 
 
 
 
 
 

Vraag bezichtiging aan

Vergelijkbaar aanbod

Verkocht
ZWOLLE
Berkumstraat 94
   € 350.000,- k.k.
Details
Verkocht
ZWOLLE
Van der Graaffmarke 33
   € 345.000,- k.k.
Details
Verkocht
ZWOLLE
Timmermeesterslaan 1
   € 350.000,- k.k.
Details

Wat is jouw huis waard?

Gratis rapport iQ Makelaars Leadtool